Comfortable Living in Every Square Foot
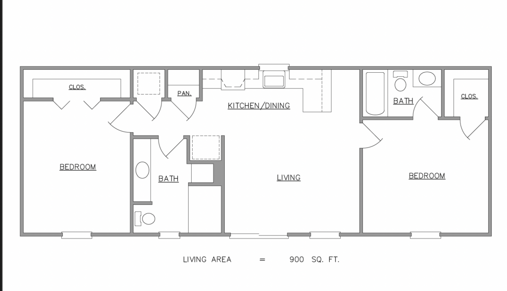
The Jesse floor plan offers a well-balanced layout perfect for families or first-time homeowners looking for thoughtful design and efficient use of space. With open gathering areas and plenty of storage, this plan brings comfort and function together beautifully.
Key Features
Interior Highlights
The Jesse floor plan offers a well-balanced layoutperfect for families or first-time homeowners looking for thoughtful design and efficient use of space. With open gathering areas and plenty of storage, this plan brings comfort and function together beautifully.
Choose from options such as:
- Interior and exterior finishes
- Flooring styles
- Cabinetry and countertops
- Layout adjustments (where applicable)
We keep customization simple and transparent—so you get exactly what you want without surprises.
Affordable by Design
We believe affordability starts with smart planning. Our floor plans are designed to reduce construction waste, improve energy efficiency, and streamline the building process—allowing us to deliver quality homes at a price that makes sense.
Why Homebuyers Love It
This plan blends practical living with stylish design — ideal for growing families, new homeowners, or anyone wanting a well-organized space that feels larger than it is.














